Team Vermietung

Ihr Kontakt für Fragen zur Vermietung 

Tel: 0351 646988 13
Fax: 0351 646988 15

Dresdner Str. 303
01705 Freital

Freie Wohnungen

Hier finden Sie freie Wohnungen in den verschiedenen Anlagen.

Wenn die passende Wohnung nicht frei ist, können Sie sich in die Warteliste eintragen lassen.

Antrag Warteliste

letzte Aktualisierung: 15.01.2026

Dresden, Nicolaistraße

WE-Nr.m2ZimmerEtage 
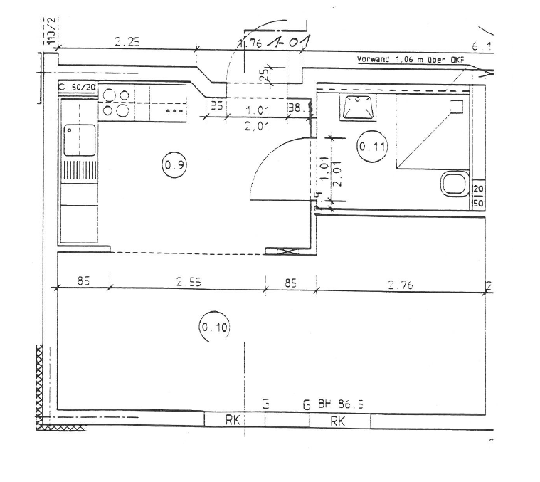
1258,3821.OGGrundriss                                                    Wohnungsbilder
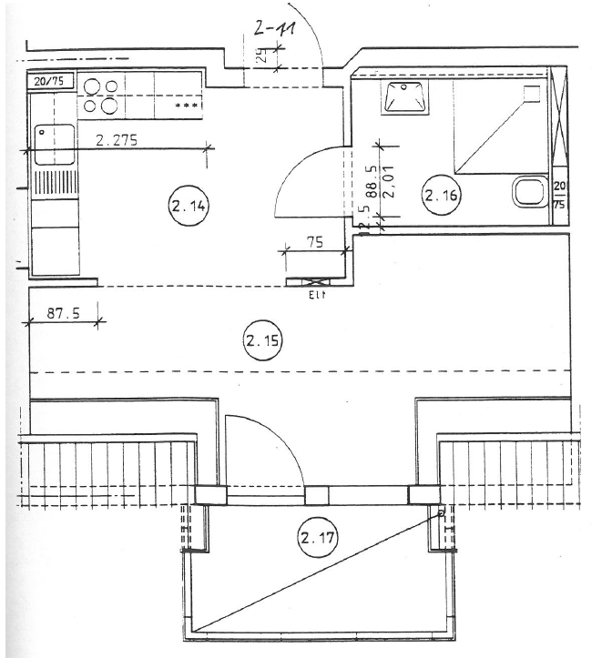
1358,3821OGGrundriss                                                    Wohnungsbilder
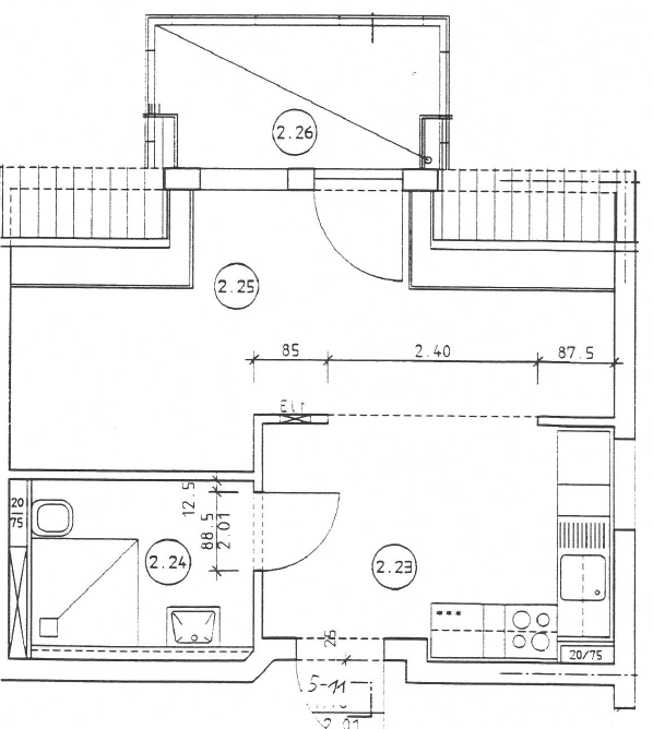
4558,3823.OGGrundriss                                                    Wohnungsbilder
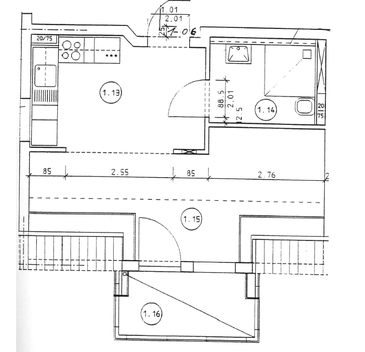
6158,3824.OGGrundriss                                                    Wohnungsbilder
     
     
     

Bannewitz

WE-Nr.m2ZimmerEtage 
4-O843,122OGGrundriss
3-O243,122OGGrundriss
2-E243,122EGGrundriss
2-E443,122EGGrundriss
     

Freital

WE-Nr.m2ZimmerEtageGrundrisse
8-0134,161EGGrundriss
8-0261,122EGGrundriss
8-03, 8-0429,591EGGrundriss
8-0527,471EGGrundriss
8-0630,571EGGrundriss
8-0730,011EGGrundriss
7-1227,4711.OGGrundriss
9-0441,1721.OGGrundriss
9-1541,302DGGrundriss

Herzogswalde

WE-Nr.m2ZimmerEtage
1-0137,131KG
1-0239,11KG
1-0634,481DG
2-1134,231DG
5-1134,751DG
5-1434,111DG